-
日期: 2024-10-21 | 来源: 加西网 | 有0人参与评论 | 字体: 小 中 大
(加西网综合)卡尔加里一栋看似普通的待售房屋吸引了大量关注,这是一栋奇葩的房源,拥有 13 间卧室的小独立屋。
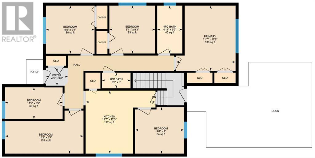
这栋位于167 Whitaker Close NE 的单层独立屋,拥有 13 间卧室,但居住面积仅为 1,108 平方英尺。是的,你没看错。
eXp 房地产
这栋房子的标价为 50 万元,主楼层有六间卧室,地下室有七间卧室。值得注意的是,房屋内部的照片在房源信息清单上缺失。
(eXp Realty)
(eXp Realty)
许多房间的居住空间都很小,最小的房间面积仅为 57 平方英尺。
根据挂牌信息,其中主楼层有 6 间,地下室有 7 间卧室。
房源附有两层楼的布局图,显示每间卧室面积从 57 平方英尺到 130 平方英尺不等。根据布局,每个房间都有一扇窗户。
一位不愿透露姓名的租户向 CityNews 证实,该房屋确实在出售,并且全天都有多人看房。
上周二早上接到投诉后,卡尔加里消防局 (CFD) 和市建筑部门的安全法规官员第五次到达现场,检查烟雾探测器、窗户大小,并确保每个卧室都有出口窗。
卡尔加里市政府在上周二对该房屋进行审查后发表声明称:“卡尔加里市政府和卡尔加里消防局已获悉这处房产,正在审查其是否符合土地使用法规以及消防和建筑规范。”
目前,此房源仍在市场上出售。
卡尔加里居民得知该房产挂牌出售的消息后,纷纷表示反对。数百人通过 Reddit 分享了他们对这处房产的厌恶之情,许多人直言不讳地指出,这处房产就是为了赚钱。
许多人都对房间之小感到震惊。- 地产及投资版面的文章仅供参考,不作为投资建议。投资有风险,入市请谨慎!
- 温哥华网版权所有,未经授权或许可,严禁转载或摘录
-
原文链接
原文链接:
目前还没有人发表评论, 大家都在期待您的高见