-
日期: 2017-03-30 | 來源: Contessa | 專欄: 房市動態 | 字體: 小 中 大

周末開盤立即售出100多套單元!
熱情買家翹首以盼多時的熱門樓盤Contessa at Queen Elizabeth Park (Contessa) 終於公開發售,頓時引來搶購狂潮!公開發售的第壹個周末,就銷售超過100套住宅單元。位於發展熱土Cambie走廊上的Contessa,緊鄰著名的 Queen Elizabeth Park,處於兩大商業中心Cambie Village和 Oakridge Centre Mall之間,鬧中帶靜,堪稱都市的綠洲。地理位置如此優越,注定成為投資型及居住型買家都會競相熱捧的物業。
Contessa 可以說是Cambie走廊上屈指可數的黃金地段,它位於37街和Cambie大街的轉角,美麗的Queen Elizabeth Park就在旁邊蜿蜒伸展,為住戶提供綠意盎然的休憩之地。附近超市、銀行、購物娛樂中心應有盡有,只需5分鍾的路程就可以輕松抵達。
Contessa 由Cicozzi 建築公司負責設計建造,2棟6層高的混凝土結構建築順著Cambie大街的弧形而建 ,呈現優美典雅的曲線造型。由Area 3室內設計公司打造的內部設計寬敞大方,具有氣派典雅的超高天花和娛樂空間充足的超大陽台,而且全部的套間都裝有空調設備,使居住更加舒適。
今天我們會特別介紹Contessa的叁個2-3房的戶型,他們都具有空間布局合理寬敞的特點。

展銷中心開幕當天排長龍
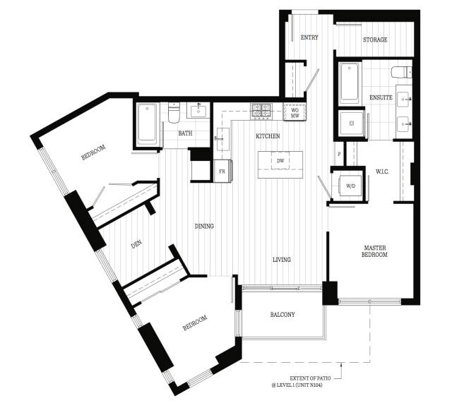
H2 戶型 - 2睡房 + den, 926平方尺
價格:123萬
這個戶型最贊的地方是通過雙陽台的設計,巧妙地引入了大量的光線。起居間和用餐區分別由這兩個陽台環繞,室內和戶外的空間互相呼應,仿佛室內空間得到了延伸,使整個家居顯得更加敞亮舒適。想象壹下:迎著清晨的暖陽,品嘗壹杯香濃的咖啡,開始美好的壹天——多麼詩意的居住!
同樣贊的是,主人房和第贰睡房設在套間的兩個對角,並且各自擁有獨立的完整浴室,彼此互不幹擾,可以享受最大的私密性。套間內還設有多功能房,為住戶提供靈活多變的額外空間,隨時可以變身為工作室或者儲物間。


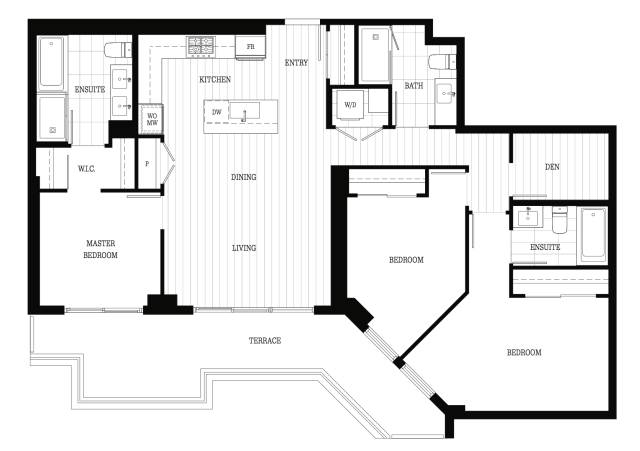
J戶型(朝北)3睡房 + den + 儲物間,1087平方尺
價格:133萬起
如 果你想擁有壹個具備大量儲藏空間的套房,J戶型將是你的理想之選。該戶型位於建築的弧線位置,面向Queen Elizabeth Park,所有的睡房還有多功能房(den) 都有大量的窗戶,接納充足的陽光,使整個家居溫暖舒適,非常怡人。超大陽台以及主人房的大窗都朝東面向Queen Elizabeth Park,讓你盡情享受大自然的清新氣息。

Z戶型(朝南):3睡房 + den, 1259平方尺
價格:166萬
這 個戶型最贊的是它布局上的巧思妙想。用餐和起居空間方方正正,呈現開放式的設計,直通向戶外寬敞的露台。事實上,整個套間的壹面全被寬大的露台環繞,由於 設計巧妙,叁個睡房同樣通向露台,使戶外室內融為壹體,增添了居住的樂趣。如果你是位園林設計的愛好者,卻苦於沒有獨立屋花園去實施你的愛好,如今這樣的 露台,正好可以讓你展現你的設計才華了。擺上幾盆漂亮的花草,置備壹套優雅的戶外躺椅,打造壹個迷人的空中花園, 坐在家中的每壹個角落都可以欣賞戶外的美景,何其愜意。
該戶型設計有叁個完整的浴室,還有額外的多功能房(den)提供更多的儲物空間,讓寬敞氣派的家居錦上添花。


展銷中心現已隆重開幕!
渴望在令人艷羨的Cambie走廊擁有壹席之地,Contessa是你屈指可數的黃金機會,就看你能否成功抓住這壹良機了!需求如此火爆,再加上高達2萬元的讓利,剩余單元將很快售罄。今天就蒞臨銷售中心參觀選購!銷售中心地址——152 – 555 West 12th Ave(位於 City square mall,Safeway 以上)。營業時間:每天12點 – 中午5點 (星期伍休息)。銷售熱線:604-564-8878。


- 更多詳情
- 新聞來源於其它媒體,內容不代表本站立場!
-
原文鏈接
原文鏈接: http://www.contessaoncambie.com/







