-
日期: 2021-06-07 | 来源: 洛杉矶华人资讯 | 有0人参与评论 | 字体: 小 中 大
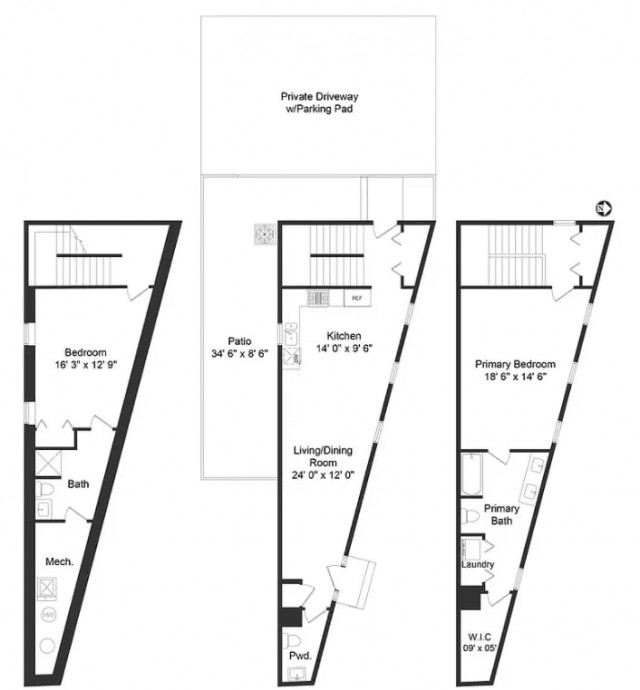
美国伊利诺伊州有一栋“超窄住宅”,其中一侧只有3英尺(约90公分)宽,在网友把影片上传网络后迅速走红。

据介绍,窄侧一端则被设计成厕所及壁橱。(图/房屋中介网,下同)
其实这栋住房早就因为独特设计登上多个节目,如今再度出现在房市市场,引起关注。
依据LADbible报导,这栋住宅坐落在一处三角形的土地上,室内格局2房2.5卫浴(0.5卫浴指的是洗手台及马桶的厕所),空间约为44坪,有厨房、客厅,也包含一个地下室,至于窄侧一端则被设计成厕所及壁橱。



- 新闻来源于其它媒体,内容不代表本站立场!
-
原文链接
原文链接:
目前还没有人发表评论, 大家都在期待您的高见